Leave a Message

Thank you for your message. We will be in touch with you shortly.

Explore Our Properties

Property Description

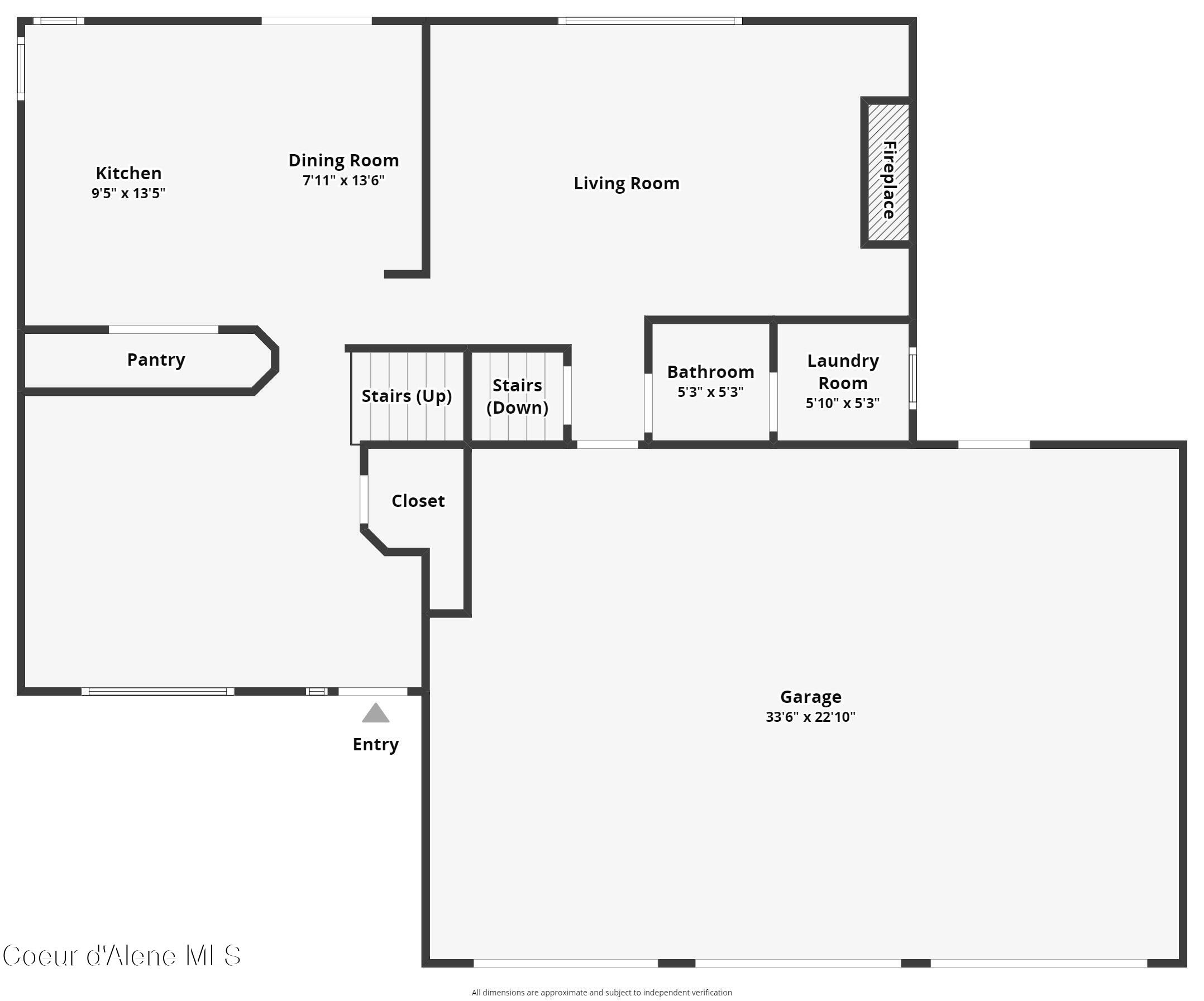
Take a look at this large and beautiful home in the highly desired, Coeur d'Alene Place! With 4 bedrooms, 2.5 bathrooms, and almost 2,400 square feet of space, it offers ample room to accommodate any family! The spacious yard provides a large area to play and relax in one of the most tranquil neighborhoods around. With this home's open kitchen, granite countertops, large living room, cozy gas fireplace, huge 3-car garage, full vinyl fencing, beautiful landscaping, full irrigation systems, and covered porch, there isn't much more you could ask for! Everything from the air conditioner to the included appliances work wonderfully, and will even be insured under a home warranty provided to the buyer at no cost! Take advantage of the opportunity!

Overview

Property Status
Pending
Lot Size
6,534 Sq.Ft.
MLS ID
26-213
Property Type
Residential
Year Built
2004

Features & Amenities

Total Area
2,394 Sq.Ft.
Neighborhood
Coeur d'Alene
View Description
Territorial, Neighborhood
Water Source
Public
Utilites
Cable TV
Roof
Composition
Lot Features
Sprinklers In Rear, Sprinklers In Front, Open Lot, Landscaped, Level, Southern Exposure
Parking
Paved Parking
Heat Type
Natural Gas, Fireplace(s), Electric, Forced Air, Furnace
Air Conditioning
Central Air
Laundry Room
Gas Dryer Hookup, Electric Dryer Hookup
Fireplace
Gas
Appliances
Gas Range, Electric Dryer, Gas Water Heater, Washer, Refrigerator, Microwave, Freezer, Disposal, Dishwasher
Other Interior Features
Fireplace, High Speed Internet, Smart Thermostat, Washer Hookup
Sewer
Public Sewer
Substructure
Concrete Perimeter
Other Exterior Features
Lighting, Open Porch, Rain Gutters, Lawn
School District
CDA - 271
Sales Price
$625,000
Real Estate Tax
$1,041/yr
Zoning
RES

Downloads

2867 W Tours Dr, Coeur d'Alene

Schedule a Tour

We would love to help you see this beautiful home! As a full-service brokerage, we can help you tour. Please submit an offer, and answer questions about the buying process.

Thank you

for your interest in 2867 W Tours Dr, Coeur d'Alene, Coeur d Alene, ID 83815

2867 W Tours Dr, Coeur d'Alene
Navigate
Coeur d'Alene

Explore Coeur d'Alene

read more
  • The spacious yard provides a large area to play and relax in one of the most tranquil neighborhoods around.

    Cody Fenske

Mortgage Calculator

Estimate your monthly mortgage payment, including the principal and interest, property taxes, and HOA. Adjust the values to generate a more accurate rate.
$0,000 Your Payment 20 15 65
$0,000 Your Payment

I'm Interested In

2867 W Tours Dr, Coeur d'Alene

or
  • CallCody Fenske

    License #ID - SP54854 | WA - 23028150

    (208) 719-1331
  • Follow Us On Instagram